Why Lease with Skytech?

Introducing PAMPANGA, the next Central Business District in the North

Driven by the Philippine government’s socioeconomic agenda of rural development, Pampanga has set itself apart as an upcoming real estate hotspot – and everyone is starting to take notice.

Central Luzon is now quickly becoming an alternative destination for commerce and leisure, with many prominent voices citing Pampanga as the next Central Business District (CBD) in the North. Even now, it has clearly proven itself as an economic powerhouse, with the development of the township slated to generate more than 250,000 new jobs.

Skytech IT Park was designed to be the most advanced office facility in the North – to help it earn special economic zone status from the Philippine Economic Zone Authority (PEZA), to persuade industry heavyweights to take their business to Pampanga, and to provide massive job opportunities, not only for local residents, but for the rest of Central Luzon.

Let us discuss the future of your company at Skytech IT Park today.

Building B Leasing plans

Retail and commercial space
Office Space (Low Zone)
Office Space (High Zone)

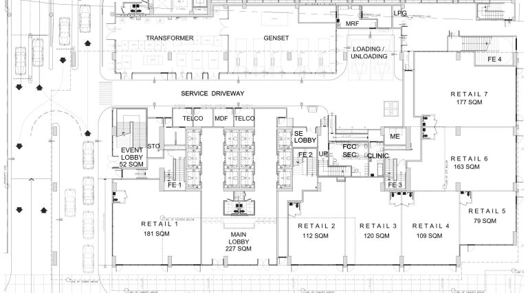
Building B Ground floor 

Gross Leasable Area

 

Floor Plate: 

Parking:

Elevators:

11,539 square meters, 

15 floors

2,500 square meters

Parking building – 248 slots | Onsite parking- 223 slots

6 highzone elevators, 5 lowzone elevators, 1 service elevators

 

Gross Leasable Area:
11,539 square meters, 15 floors

Floor Plate: 
2,500 square meters

Parking: 
Parking building – 248 slots
Onsite parking- 223 slots

Elevators: 
6 highzone elevators
5 lowzone elevators
1 service elevators

 

Click on floorplan to download full image

Second Floor: 
(Events Place)

Building B 3rd – 9th floor: 
(Low Zone)

Gross Leasable Area

 

Floor Plate: 

Parking:

 

 

Elevators:

40,700 square meters, 

15 floors

2,666 square meters

parking building – 248 slots

on site parking – 223 slots

total parking – 471 slots 

6 highzone elevators, 5 lowzone elevators, 1 service

Gross Leasable Area:
11,539 square meters, 15 floors

Floor Plate:
2,666 square meters

Parking:
Parking building – 248 slots
Onsite parking- 223 slots

Elevators:
5 lowzone elevators
1 service elevators

 

Click on floorplan to download full image

Building B 10th – 16th floor: 
(High Zone)

Gross Leasable Area

 

Floor Plate: 

Parking:

 

 

Elevators:

11,539 square meters, 

15 floors

2,666 square meters

parking building – 248 slots

on site parking – 223 slots

total parking 471 slots 

6 highzone elevators, 1 service

Gross Leasable Area:
11,539 square meters, 15 floors

Floor Plate:
2,666 square meters

Parking:
Parking building – 248 slots
Onsite parking- 223 slots

Elevators:
6 highzone elevators
1 service elevators